Shipton Grove, Old Walcot, Swindon
*** HIGH SPECIFICATION - 5 BEDROOMS *** POSSIBLY ONE OF…
£495,000
14 Ripley Road, Swindon, Wiltshire, SN1 4DE
Sold STC
Guide Price £270,000












THE PERFECT FIRST-TIME PURCHASE *** A STUNNINGLY PRESENTED, Victorian built, terraced home, situated along a sought after road (South Side Of Bath Road in Old Town). Offering a short walk to amenities, reputable schools and the beautiful Town Gardens. Offered For Sale with NO ONWARD CHAIN!
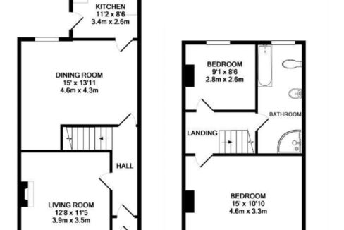
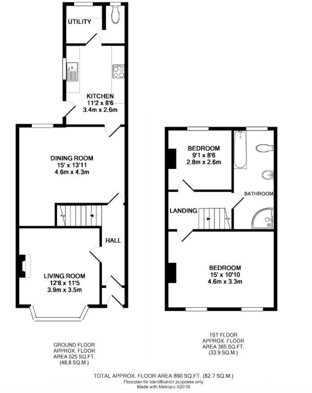
*** OFFERED FOR SALE WITH NO ONWARD CHAIN! *** THE PERFECT FIRST-TIME PURCHASE *** MILES BYRON are delighted to offer ‘For Sale’ this STUNNINGLY PRESENTED, Victorian built, terraced home, situated along a sought after road (South Side Of Bath Road in Old Town). Offering a short walk to amenities, reputable schools and the beautiful Town Gardens. The deceptively spacious living accommodation briefly comprises: Entrance porch, entrance hall, two separate reception rooms including: a living room & separate dining room. In addition there is a kitchen, utility room and W.C. To the first floor there are TWO BEDROOMS + A LARGE 4-PIECE BATHROOM. Externally there is a fully enclosed and a low in maintenance rear garden. A viewing is strongly advised to fully appreciate this EXCEPTIONAL HOME.
Council Tax Band: B (Swindon Borough Council)
Tenure: Freehold
Parking options: On Street, Residents
Garden details: Enclosed Garden, Rear Garden
Electricity supply: Mains
Heating: Gas Mains
Water supply: Mains
Sewerage: Mains
*** HIGH SPECIFICATION - 5 BEDROOMS *** POSSIBLY ONE OF…
£495,000
*** A MUST VIEW HOME WITH EXTENSION POTENTIAL TO THE…
Offers Over £365,000
Owning a home is a keystone of wealth… both financial affluence and emotional security.