Norton Grove, Old Walcot, Swindon
DESIRABLE 'OLD WALCOT' LOCATION * CLOSE PROXIMITY TO BOTH OLD…
Guide Price £350,000
34 Maunsell Way, Swindon, Wiltshire, SN4 9JE
Sold STC
£325,000














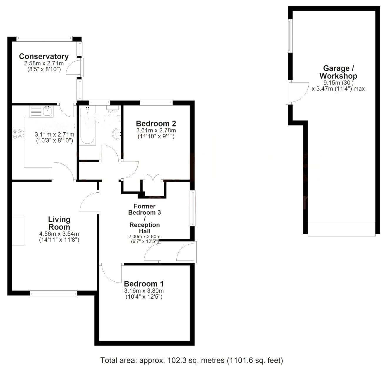
A greatly improved & beautifully presented 2 DOUBLE BEDROOM semi detached bungalow located with the desirable village of Wroughton. The exceptional living accommodation briefly comprises: Entrance porch, dining room, living room, kitchen, conservatory & 2 DOUBLE BEDROOMS ***
A greatly improved & beautifully presented 2 DOUBLE BEDROOM semi detached bungalow located with the desirable village of Wroughton.
The exceptional living accommodation briefly comprises: Entrance porch, dining room, living room, kitchen, conservatory & 2 DOUBLE BEDROOMS ***
Externally there is fully enclosed rear garden boasting a SOUTH EASTERLY facing aspect, block paved driveway providing ample off street parking & single garage.
Wroughton: Providing easy access to local amenities, as well as the very popular Old Town area. It is also close by to major road links such as Junction 15 & 16 of the M4 Motorway, the Great Western Hospital. To fully appreciate this delightful home, we would highly recommend confirming your appointment to view as soon as possible!
Tenure: Freehold
Parking options: Driveway, Garage, Off Street
Garden details: Enclosed Garden, Front Garden, Private Garden, Rear Garden
Electricity supply: Mains
Heating: Gas Mains
Water supply: Mains
Sewerage: Mains
DESIRABLE 'OLD WALCOT' LOCATION * CLOSE PROXIMITY TO BOTH OLD…
Guide Price £350,000
SOUGHT AFTER EAST SWINDON LOCATION *** 3 GENEROUS SIZE BEDROOMS…
Guide Price £325,000
Owning a home is a keystone of wealth… both financial affluence and emotional security.